0120-384-700
検索アイコン
7,180 万円

都心へ軽やかに、暮らしは穏やかに。東長崎に住む価値。

駅近の利便性を享受しながら、内装は一新された心地よい住空間でゆとりある毎日を実現。

中古マンション マイキャッスル東長崎 豊島区南長崎4丁目
TEL:
0120-384-700 0120-384-700
[無料]
物件番号:ymd448

【Exterior】外観

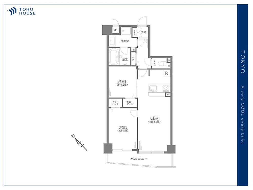
【Floorplan】間取り

【Exterior】外観

【Exterior】外観

【Exterior】外観

【Exterior】外観

【Exterior】外観

【Exterior】外観

【Exterior】外観

【Exterior】外観

【Exterior】外観

【Entrance】エントランス

【Entrance hall】エントランスホール

【Entrance hall】エントランスホール

【Exterior】外観

東長崎駅 まで約280m

落合東長崎まで約750m

椎名町駅まで約1000m

まいばすけっと南長崎5丁目店まで約350m

東急ストア東長崎店まで約450m

サミットストア 東長崎店まで約1000m

南長崎はらっぱ公園まで約550m

長崎公園まで約650m

哲学堂公園まで約1400m

REPORT

A

採光・通風の良さ:A
アクセス:S
第一印象:A
デザイン性:A
周辺環境:A
≪当日見学可能な物件です≫お住まい提案から資金シミュレーション、ご購入後は専属FPのファイナンシャルサポート。お客様が安心できる住まい探しのお手伝いを。
山田 哲也
ヤマダ テツヤ

A

採光・通風の良さ:A
アクセス:S
第一印象:A
デザイン性:A
周辺環境:A
≪当日見学可能な物件です≫お住まい提案から資金シミュレーション、ご購入後は専属FPのファイナンシャルサポート。お客様が安心できる住まい探しのお手伝いを。
TEL: 0120-384-700 0120-384-700 [通話料無料]
物件番号:ymd448
物件名
マイキャッスル東長崎
所在地
東京都豊島区南長崎4丁目
交通
(1)西武池袋線「東長崎」駅徒歩4分
(2)都営大江戸線「落合南長崎」駅徒歩10分
(3)西武池袋線「椎名町」駅徒歩12分
その他交通
-
間取り
2LDK
築年月
1997年07月
専有面積
55.04m²(壁芯)
所在階/階数
5階/地上6階
設備
都市ガス/東京電力/公営水道/下水排水/給湯/インターホンTV/室内洗濯機置場/フローリング/収納/エレベータ/システムキッチン/シャンプードレッサー/バルコニー/宅配ボックス/対面キッチン/追焚給湯/温水洗浄便座/暖房便座/浴室換気乾燥機/リフォーム済み/自転車置き場/洗濯機置場/浄水器/オートバス/日当り良好/閑静な住宅街/バス・トイレ別/洗面台独立/5年以内に水回り設備交換/5年以内に内装リフォーム/セキュリティ充実/脱衣所あり/全居室フローリング/可動間仕切り/浴室に窓/南西向き/通風良好/全居室収納/フローリング張替/内装リフォーム/ワイドバルコニー/南面バルコニー/高機能トイレ/眺望良好/小学校徒歩10分以内/スーパー徒歩10分以内/共有施設充実/高台に立地/緑豊かな住宅地/平坦地/前面棟無/都市近郊/市街地が近い/駅まで平坦/2沿線以上利用可/年内入居可/24時間ゴミ出し可
建物構造
RC
土地権利
所有権
バルコニー面積/向き
5.21m2/南西
総戸数
33戸
販売戸数
-
駐車場(空数)
-
駐車場料金(月額)
-
敷地面積
-
建築確認番号
-
引渡し時期
相談
管理費
11,000円
修繕積立金
10,890円
現況
空家
国土法届出
不要
管理形態
全部委託/通勤方式
間取り詳細
南西向き
その他費用
町会費・商店会費:250円/月
備考
-
リフォーム・リノベーション
水回りリフォーム(2026年04月)
キッチン/浴室/トイレ/洗面所/給湯器
内装リフォーム(2026年04月)
床/壁/ハウスクリーニング他
学区
椎名町小学校
明豊中学校
※学区につきまして、学校名が複数表示される場合がございますが、丁目以下の住所により異なるため、詳しい内容は該当の行政機関等にお問い合わせください。
取引態様
仲介
管理番号
ymd448
情報更新日
2026-04-02
次回更新予定日
随時