0120-384-700
検索アイコン
9,250 万円

成増駅に新築分譲戸建3棟誕生

家族の理想を叶える全3棟。32坪超の広々敷地。 駐車2台可(車種による)です。

新築戸建て 板橋区成増4丁目 全3棟 1号棟 板橋区成増4丁目
TEL:
0120-384-700 0120-384-700
[無料]
物件番号:onu576-1

【Under construction】建設中

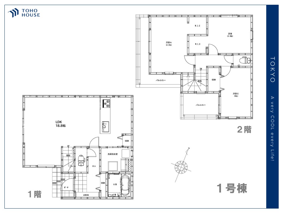
【floor plan】間取り

【完成予想図】【Exterior】外観

【Under construction】建設中

【Under construction】建設中

【Under construction】建設中

【Under construction】建設中

【Under construction】建設中

【Under construction】建設中

【Under construction】建設中

【Under construction】建設中

【Under construction】建設中

【Under construction】建設中

【Under construction】建設中

【Under construction】建設中

成増駅まで約1120m

地下鉄成増駅まで約1360m

西高島平駅まで約1200m

マルエツ成増団地店まで約350m

オーケー和光下新倉店まで約1100m

西友成増店まで約1110m

ベルク和光白子店まで約1300m

成増北第一公園まで約450m

赤塚溜池公園まで約950m

REPORT

B

採光・通風の良さ:B
アクセス:B
第一印象:A
デザイン性:A
周辺環境:A
≪当日見学可能な物件です≫お住まい提案から資金シミュレーション、ご購入後は専属FPのファイナンシャルサポート。お客様が安心できる住まい探しのお手伝いを。
小沼 雅嗣
オヌマ マサツグ

B

採光・通風の良さ:B
アクセス:B
第一印象:A
デザイン性:A
周辺環境:A
≪当日見学可能な物件です≫お住まい提案から資金シミュレーション、ご購入後は専属FPのファイナンシャルサポート。お客様が安心できる住まい探しのお手伝いを。
TEL: 0120-384-700 0120-384-700 [通話料無料]
物件番号:onu576-1
物件名
板橋区成増4丁目 全3棟 1号棟
所在地
東京都板橋区成増4丁目
交通
(1)東武鉄道東上線「成増」駅徒歩14分
(2)都営三田線「西高島平」駅徒歩15分
(3)東京メトロ有楽町線「地下鉄成増」駅徒歩17分
その他交通
-
間取り
3LDK
築年月
2026年08月
延床面積
89.22m²(登記)
土地面積
111.02m²(登記)
設備
都市ガス/東京電力/公営水道/下水排水/給湯/インターホンTV/フローリング/ロフト/収納/システムキッチン/シャンプードレッサー/対面キッチン/温水洗浄便座/暖房便座/浴室換気乾燥機/床下収納/床暖房/クローゼット/ウォークインクローゼット/駐車場/駐車場2台/ペアガラス/建物10年保証/食器洗浄乾燥機/浄水器/トイレ2ヶ所/オートバス/バス1坪以上/日当り良好/閑静な住宅街/吹抜/バス・トイレ別/洗面台独立/省エネルギー対策/高気密高断熱住宅/セキュリティ充実/脱衣所あり/シューズボックス/リビングダイニング15畳以上/小学校まで1km以内/全居室フローリング/リビング階段/LDK18畳以上/浴室に窓/南西向き/通風良好/全居室収納/ワイドバルコニー/2面以上バルコニー/高機能トイレ/眺望良好/整備された歩道/小学校徒歩10分以内/スーパー徒歩10分以内/緑豊かな住宅地/角地/都市近郊/市街地が近い/始発駅/2沿線以上利用可/年内入居可/総合病院10分以内
建物構造
木造
土地権利
所有権
私道面積
引渡し時期
相談
階建
地上2階
用途地域
第一種低層住居専用地域
地目
宅地
セットバック
不要
現況
未完成
国土法届出
不要
販売戸数
-
建築確認番号
第25UDI1W建10344号
接道
角地 南西側幅4m 北西側幅4m
建ぺい率/容積率
40%/80%
間取り詳細
南西向き
備考
準防火地域
学区
三園小学校/成増ケ丘小学校
赤塚第二中学校
※学区につきまして、学校名が複数表示される場合がございますが、丁目以下の住所により異なるため、詳しい内容は該当の行政機関等にお問い合わせください。
取引態様
仲介
管理番号
onu576-1
情報更新日
2026-04-13
次回更新予定日
随時