0120-384-700
検索アイコン
6,280 万円

「長期優良住宅×住宅性能評価」~開放感溢れる勾配天井~

生活彩る充実した住環境。長期優良認定住宅×住宅性能表示W取得。並列2台駐車可能な広々敷地です。

新築戸建て 小平市鈴木町1丁目 全2棟 2号棟 小平市鈴木町1丁目
TEL:
0120-384-700 0120-384-700
[無料]
物件番号:iwa410-2

【同施工業者完成施工例:LDK】
仕様・カラーデザイン・設備等は異なる場合がございます。

【同施工業者完成施工例:LDK】
仕様・カラーデザイン・設備等は異なる場合がございます。

【同施工業者完成施工例:LDK】
仕様・カラーデザイン・設備等は異なる場合がございます。

【Under construction】建設中

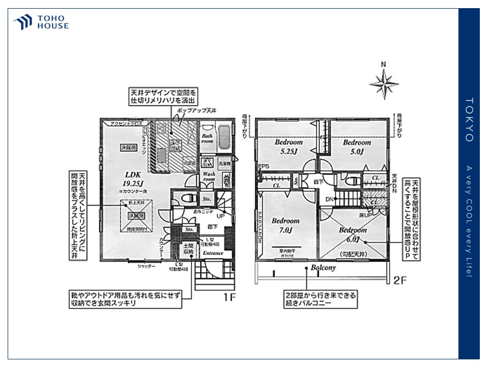
【floor plan】間取り

【Under construction】建設中

【Under construction】建設中

【Under construction】建設中

【Under construction】建設中

【Under construction】建設中

【Under construction】建設中

【Under construction】建設中

【Under construction】建設中

花小金井駅まで約1600m

一橋学園駅まで約1960m

小平駅まで約2089m

ビッグ・エー小平鈴木店まで約772m

コープ回田店まで約1075m

いなげや小平回田店まで約1120m

天神地域センター公園まで約326m

くすの木公園まで約388m

恵泉通り東公園まで約624m

REPORT

A

採光・通風の良さ:S
アクセス:B
第一印象:A
デザイン性:A
周辺環境:A
≪当日見学可能な物件です≫お住まい提案から資金シミュレーション、ご購入後は専属FPのファイナンシャルサポート。お客様が安心できる住まい探しのお手伝いを。
岩﨑 亮
イワサキ リョウ

A

採光・通風の良さ:S
アクセス:B
第一印象:A
デザイン性:A
周辺環境:A
≪当日見学可能な物件です≫お住まい提案から資金シミュレーション、ご購入後は専属FPのファイナンシャルサポート。お客様が安心できる住まい探しのお手伝いを。
TEL: 0120-384-700 0120-384-700 [通話料無料]
物件番号:iwa410-2
物件名
小平市鈴木町1丁目 全2棟 2号棟
所在地
東京都小平市鈴木町1丁目
交通
(1)西武新宿線「花小金井」駅徒歩20分
(2)JR中央線「国分寺」駅バス20分「共済住宅」停歩5分
(3)西武多摩湖線「一橋学園」駅徒歩26分
その他交通
-
間取り
4LDK
築年月
2026年07月
延床面積
99.36m²(登記)
土地面積
124.57m²(登記)
設備
都市ガス/東京電力/公営水道/下水排水/給湯/インターホンTV/フローリング/収納/システムキッチン/シャンプードレッサー/バルコニー/対面キッチン/追焚給湯/温水洗浄便座/暖房便座/浴室換気乾燥機/床下収納/床暖房/クローゼット/駐車場/駐車場2台/ペアガラス/建物10年保証/耐震構造/食器洗浄乾燥機/太陽光発電/長期優良/浄水器/トイレ2ヶ所/シャッター雨戸/オートバス/バス1坪以上/日当り良好/閑静な住宅街/設計住宅性能評価取得/建設住宅性能評価取得/吹抜/バス・トイレ別/洗面台独立/脱衣所あり/シューズボックス/公園800m以内/リビングダイニング15畳以上/小学校まで1km以内/BELS/省エネ基準適合認定書あり/2面採光/天井高2.5m以上/可動間仕切り/LDK18畳以上/和室/浴室に窓/南向き/全室2面採光/3面採光/通風良好/全居室収納/南面バルコニー/高機能トイレ/眺望良好/隣家との間隔が大きい/整備された歩道/小学校徒歩10分以内/スーパー徒歩10分以内/整形地/緑豊かな住宅地/前面棟無/都市近郊/南側道路面す/市街地が近い/始発駅/2沿線以上利用可/年内入居可
建物構造
木造
土地権利
所有権
私道面積
引渡し時期
相談
階建
地上2階
用途地域
第一種低層住居専用地域
地目
宅地
セットバック
不要
現況
未完成
国土法届出
不要
販売戸数
-
建築確認番号
第R08SHC104498号
接道
一方 南側幅4m
接道位置指定有 
建ぺい率/容積率
40%/80%
間取り詳細
南向き
備考
私道持分/あり(3949.65㎡と1570.21㎡を250分の1ずつ)、その他持分/あり(197.75㎡、273.12㎡、209.71㎡、318.86㎡、312.79㎡、266.9㎡、295.83㎡、294.24㎡、177.32㎡を250分の1ずつ(緑地部分))、鈴の木自治会への加入が必須 入会時に125000円 年会費月額300円(年3600円)
学区
小平第九小学校/小平第八小学校/鈴木小学校
小平第三中学校
※学区につきまして、学校名が複数表示される場合がございますが、丁目以下の住所により異なるため、詳しい内容は該当の行政機関等にお問い合わせください。
取引態様
仲介
管理番号
iwa410-2
情報更新日
2026-04-21
次回更新予定日
随時