0120-384-700
検索アイコン
5,899 万円

未来基準の住まい

ZEH水準で高断熱・省エネを実現。駐車2台可能でゆとりある暮らしを叶える新築戸建て。

新築戸建て 東久留米市小山9期 全1棟 1号棟 東久留米市小山4丁目
TEL:
0120-384-700 0120-384-700
[無料]
物件番号:aiy461

【同施工業者完成施工例:LDK】
間取り・カラーデザイン・設備・仕様等は異なる場合がございます。

【同施工業者完成施工例:LDK】
間取り・カラーデザイン・設備・仕様等は異なる場合がございます。

【同施工業者完成施工例:居室】
間取り・カラーデザイン・設備等は異なる場合がございます。

【Under Construction】建設中【Exterior】外観

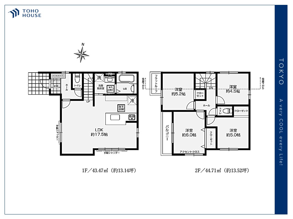
【Floor plan】間取り

【Under Construction】建設中【Exterior】外観

【Under Construction】建設中【Exterior】外観

【Under Construction】建設中【Exterior】外観

【Under Construction】建設中【Exterior】外観

【Under Construction】建設中【Exterior】外観

【Under Construction】建設中【Interior】内観

【Under Construction】建設中【Interior】内観

REPORT

A

採光・通風の良さ:A
アクセス:A
第一印象:A
デザイン性:A
周辺環境:A
≪当日見学可能な物件です≫お住まい提案から資金シミュレーション、ご購入後は専属FPのファイナンシャルサポート。お客様が安心できる住まい探しのお手伝いを。
相吉 雄太
アイヨシ ユウタ

A

採光・通風の良さ:A
アクセス:A
第一印象:A
デザイン性:A
周辺環境:A
≪当日見学可能な物件です≫お住まい提案から資金シミュレーション、ご購入後は専属FPのファイナンシャルサポート。お客様が安心できる住まい探しのお手伝いを。
TEL: 0120-384-700 0120-384-700 [通話料無料]
物件番号:aiy461
物件名
東久留米市小山9期 全1棟 1号棟
所在地
東京都東久留米市小山4丁目
交通
(1)西武池袋線「清瀬」駅徒歩13分
その他交通
-
間取り
4LDK
築年月
2026年05月
延床面積
88.18m²(登記)
土地面積
111.88m²(登記)
設備
都市ガス/東京電力/公営水道/下水排水/給湯/インターホンTV/フローリング/収納/シャンプードレッサー/バルコニー/対面キッチン/独立キッチン/追焚給湯/温水洗浄便座/クローゼット/ガスキッチン/駐車場/駐車場2台/ペアガラス/24時間換気システム/建物10年保証/食器洗浄乾燥機/浄水器/トイレ2ヶ所/シャッター雨戸/オートバス/日当り良好/バス・トイレ別/洗面台独立/公園800m以内/小学校まで1km以内/全居室複層ガラスか複層サッシ/全居室フローリング/リビング階段/LDK15畳以上/浴室に窓/通風良好/全居室収納/隣家との間隔が大きい/小学校徒歩10分以内/中学校徒歩10分以内/前面棟無/都市近郊/市街地が近い/年内入居可/シューズインクローク
建物構造
木造
土地権利
所有権
私道面積
引渡し時期
相談
階建
地上2階
用途地域
第一種低層住居専用地域
地目
宅地
セットバック
不要
現況
未完成
国土法届出
不要
販売戸数
-
建築確認番号
第HPA-25-14209-1号
接道
一方 西側幅4m
建ぺい率/容積率
40%/80%
間取り詳細
西向き
備考
私道持分(301㎡持分4710/71740)、(20㎡持分392/30559)
学区
小山小学校
久留米中学校
※学区につきまして、学校名が複数表示される場合がございますが、丁目以下の住所により異なるため、詳しい内容は該当の行政機関等にお問い合わせください。
取引態様
仲介
管理番号
aiy461
情報更新日
2026-04-18
次回更新予定日
随時